MAVA

Komijnsteeg 57

Gouda

Verkocht




Omschrijving

In het hart van de historische binnenstad van Gouda, in een rustige en charmante steeg, ligt deze karakteristieke stadswoning met een woonoppervlakte van 58 m². Achter de fraaie gevel bevindt zich een lichte woning waarin authentieke details en modern comfort mooi samenkomen. Met twee slaapkamers, een moderne keuken, een nette badkamer, een fijn dakterras en een achterom is dit een prettig huis om in te wonen. Ideaal voor starters, stellen of stadsliefhebbers die willen genieten van alles wat Gouda te bieden heeft, van de sfeervolle grachten en gezellige terrasjes tot de levendige Markt, allemaal op loopafstand.

Bijzonderheden
- Woonoppervlakte: ca. 58 m²;
- Keuken vernieuwd in 2020, toilet in 2022;
- Twee slaapkamers en een moderne badkamer;
- Tuin met achterom en berging;
- Zonnig dakterras

In het hart van de historische binnenstad van Gouda, in een rustige en charmante steeg, ligt deze karakteristieke stadswoning met een woonoppervlakte van 58 m². Achter de fraaie gevel bevindt zich een lichte woning waarin authentieke details en modern comfort mooi samenkomen. Met twee slaapkamers, een moderne keuken, een nette badkamer, een fijn dakterras en een achterom is dit een prettig huis om in te wonen. Ideaal voor starters, stellen of stadsliefhebbers die willen genieten van alles wat Gouda te bieden heeft, van de sfeervolle grachten en gezellige terrasjes tot de levendige Markt, allemaal op loopafstand.

Bijzonderheden
– Woonoppervlakte: ca. 58 m²;
– Keuken vernieuwd in 2020, toilet in 2022;
– Twee slaapkamers en een moderne badkamer;
– Tuin met achterom en berging;
– Zonnig dakterras op de eerste verdieping;
– Kunststof kozijnen (HR+++ glas) aan de voorzijde en twee nieuwe dakramen met HR++ glas;
– Authentieke gevel en karakteristieke uitstraling;
– Glasvezelaansluiting aanwezig;
– Gelegen in een rustige steeg in de binnenstad van Gouda;
– Op loopafstand van winkels, horeca, station en de Markt.

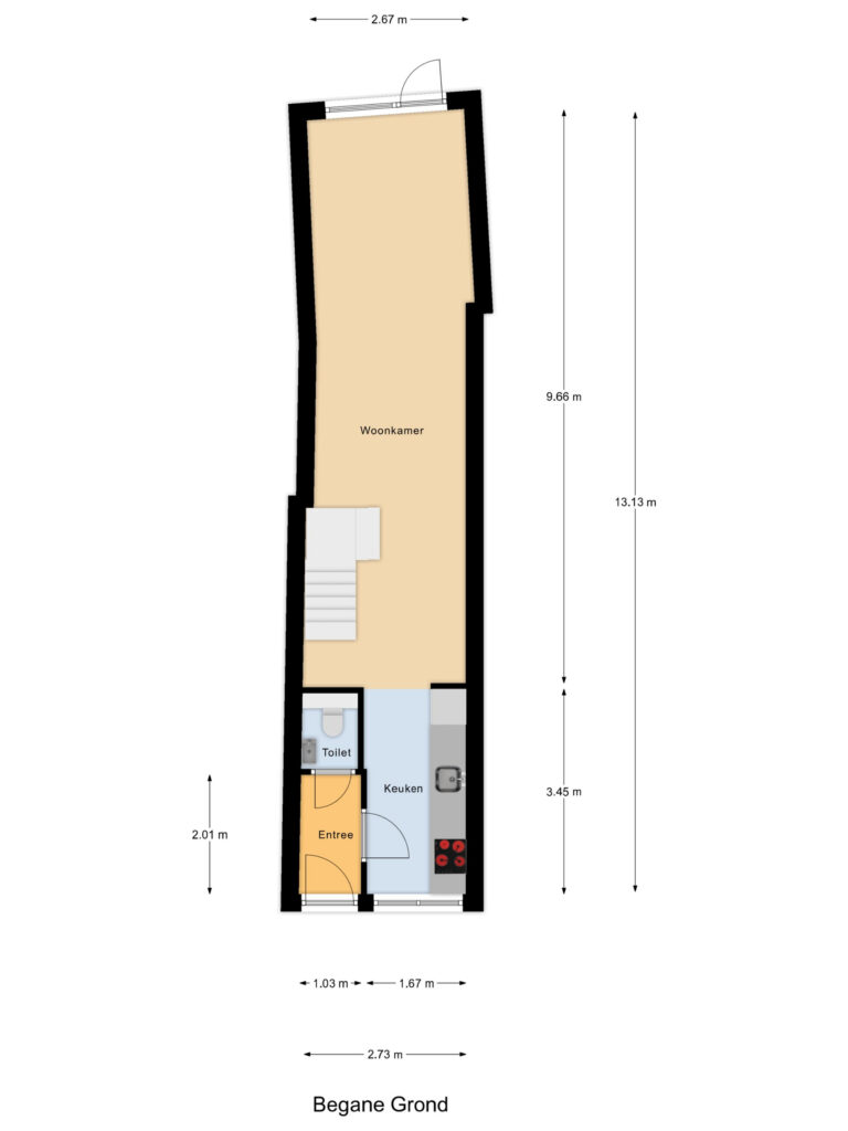
Indeling

Begane grond:
Entree, hal met toegang tot het toilet en de keuken.
De keuken aan de voorzijde is vernieuwd en modern ingericht met lichte fronten, een strak werkblad en diverse inbouwapparatuur. De trap is centraal geplaatst, met daartegenover een op maat gemaakte kastenwand met geïntegreerd eetgedeelte. Deze maatwerkoplossing benut de ruimte optimaal en geeft de kamer een praktische én stijlvolle uitstraling.
Aan de achterzijde bevindt zich de gezellige woonkamer met openslaande deuren naar de tuin.

Eerste verdieping:
Op deze verdieping bevinden zich twee comfortabele slaapkamers en een lichte overloop met dakraam. De slaapkamer aan de achterzijde biedt directe toegang tot het dakterras, vanwaar je een prachtig uitzicht hebt op de karakteristieke daken van Gouda. De tweede slaapkamer aan de voorzijde is flexibel in te delen en uitstekend geschikt als slaapkamer, werkkamer of logeerkamer.
De badkamer is modern afgewerkt met grijze vloertegels, witte wandtegels, een ruime inloopdouche en een stijlvol wastafelmeubel met ronde spiegel.

Dakterras:
Een groot pluspunt van deze woning is het ruime dakterras aan de achterzijde: een zonnige en sfeervolle plek met volop ruimte voor een loungeset of eettafel.

Tuin:
De knusse stadstuin is aangelegd met grind en omheind met een halfhoge schutting. Achterin bevindt zich een berging, ideaal voor het opbergen van tuingereedschap of het stallen van fietsen.

Komijnsteeg 57 is een charmante en instapklare stadswoning met een verrassend praktische indeling, een zonnig dakterras, een handige achterom en een geweldige ligging in het hart van historisch Gouda. Een mooie kans om sfeervol en comfortabel te wonen in een van de meest karakteristieke straatjes van de stad.

Kenmerken

Bouwjaar:
1900
Ligging:
In centrum, In woonwijk
Woonoppervlakte:
58 m2
Perceeloppervlakte:
43 m2
Inhoud:
205 m3
Aantal kamers:
3
Aantal slaapkamers:
2
Status:
Verkocht
Kwaliteit:
Normaal

Energieklasse:
C
Energie einddatum:
5 november 2035
Isolatie:
Dakisolatie, Grotendeels dubbelglas
Verwarming:
CV ketel
Garage:
Geen garage
Warm water:
CV ketel
Tuin:
Achtertuin
Schuur / Berging:
Vrijstaand hout
Parkeerfaciliteiten:
Betaald parkeren, Parkeervergunningen
Soort dak:
Samengesteld dak
Permanente bewoning:
Ja
Kwaliteit woning:
Goed
Kwaliteit tuin:
Goed
Huidig gebruik:
Woonruimte
Huidige bestemming:
Woonruimte
VVE periodieke bijdrage:
Nee
Aanvaarding:
In overleg
Bouwvorm:
Bestaande bouw
Gebouwgebonden buitenruimte:
10 m2
Perceeloppervlakte:
43 m2
Externe bergruimte:
2 m2
C.V.-Ketel:
Intergas HRE 28/24 CW4
Hoofdtuin:
Achtertuin
Oppervlakte hoofdtuin:
7 m2
Voorzieningen:
Mechanische ventilatie
Vraagprijs:
€ 285.000,- k.k.
Soort object:
Woonhuis
Soort woning:
Eengezinswoning
Type Woning:
Tussenwoning
Ligging hoofdtuin:
Zuidoost

Over Gouda

Samenstelling huishoudens