MAVA

Frans Halsstraat 48

Zoetermeer

Verkocht




Omschrijving

Aan een rustige, groene straat ligt deze eengezinswoning aan de Frans Halsstraat 48 met een woonoppervlakte van ca. 85 m², een grote en diepe achtertuin, achterom en een vrijstaande berging. De woning is goed onderhouden en biedt een uitstekende basis om geheel naar eigen smaak te moderniseren. Met een lichte doorzonwoonkamer, een aparte keuken, twee volwaardige slaapkamers, een praktische was-/bergruimte en een badkamer met daglicht.

Indeling

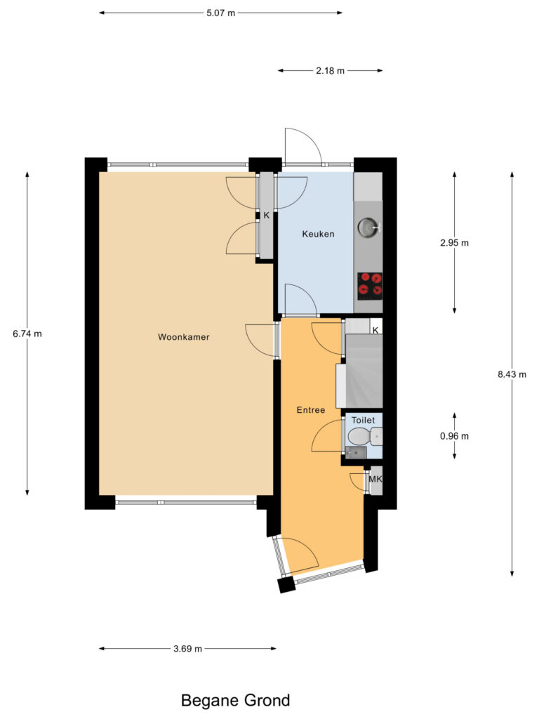
Begane grond:
Via de verzorgde voortuin bereikt u de entree. In de hal bevinden zich de trapopgang, garderobe, de meterkast en het toilet, dat is uitgerust met een fonteintje. Vanuit de entree zijn de woonkamer en de dichte keuken te bereiken.
De doorzonwoonkamer is heerlijk licht dankzij de grote ramen aan de voor- en achterzijde. Aan de voorzijde is een gezellig zitgedeelte gecreëerd

Aan een rustige, groene straat ligt deze eengezinswoning aan de Frans Halsstraat 48 met een woonoppervlakte van ca. 85 m², een grote en diepe achtertuin, achterom en een vrijstaande berging. De woning is goed onderhouden en biedt een uitstekende basis om geheel naar eigen smaak te moderniseren. Met een lichte doorzonwoonkamer, een aparte keuken, twee volwaardige slaapkamers, een praktische was-/bergruimte en een badkamer met daglicht.

Indeling

Begane grond:
Via de verzorgde voortuin bereikt u de entree. In de hal bevinden zich de trapopgang, garderobe, de meterkast en het toilet, dat is uitgerust met een fonteintje. Vanuit de entree zijn de woonkamer en de dichte keuken te bereiken.
De doorzonwoonkamer is heerlijk licht dankzij de grote ramen aan de voor- en achterzijde. Aan de voorzijde is een gezellig zitgedeelte gecreëerd waar u comfortabel kunt ontspannen met uitzicht op de rustige straat. De wanden zijn in lichte tinten afgewerkt en de vloer is voorzien van tapijt. Aan de achterzijde is voldoende ruimte voor een eettafel met zicht op de tuin. De keuken is praktisch ingedeeld met een lang, recht keukenblok met een groot werkblad en witte wandtegels. Er zijn een 4-pits gaskookplaat, een koelkast en een vriezer aanwezig. Een tuindeur geeft direct toegang tot de achtertuin. In de keuken bevindt zich tevens een vaste kast, altijd handig voor voorraad en extra bergruimte.

Eerste verdieping:
Op de eerste verdieping leidt de overloop u langs alle vertrekken. Aan de achterzijde bevindt zich de ruime hoofdslaapkamer met een vaste kast, een groot raam en een deur naar het balkon. Aan de voorzijde ligt de tweede slaapkamer, prettig van formaat en eveneens voorzien van een vaste kast, ideaal voor kleding of extra bergruimte. Daarnaast treft u een ruime, praktische was- en bergruimte met aansluitingen voor wasmachine en droger, en de cv-combiketel (Remeha, 2015) is hier keurig opgesteld. De badkamer is volledig betegeld in een lichte tint en beschikt over een douchecabine, wastafel en toilet. Een hooggeplaatst raam zorgt voor prettig daglicht en natuurlijke ventilatie.

Tuin:
De achtertuin is een groot pluspunt: bijna 17 meter diep, groen en onderhoudsvriendelijk. Er is een combinatie van grijze tegels, opsluitranden en beplanting. Achterin staat een vrijstaande stenen berging en via de achterom bereikt u eenvoudig het achterpad. Direct aan de woning is een groot betegeld terras, zodat hier een fijne zitplaats gecreëerd kan worden.

Bijzonderheden:
-Woonoppervlakte ca. 85 m².
-Diepe achtertuin gelegen op het zuidoosten met berging en achterom.
-Twee slaapkamers en een aparte was-/bergruimte met cv-opstelling (Remeha, 2015).
-Separate keuken met toegang tot de tuin.
-Doorzonwoonkamer met grote raampartijen.
-Gelegen aan een rustige straat met voldoende parkeergelegenheid voor de deur.
-Woning voorzien van houten kozijnen met een mix van dubbel en enkel glas.

Gebruiksoppervlakte woningen:
De Meetinstructie is gebaseerd op de NEN2580. De Meetinstructie is bedoeld om een meer eenduidige manier van meten toe te passen voor het geven van een indicatie van de gebruiksoppervlakte. De Meetinstructie sluit verschillen in meetuitkomsten niet volledig uit, door bijvoorbeeld interpretatieverschillen, afrondingen of beperkingen bij het uitvoeren van de meting.

Bij deze woning worden onderstaande clausules opgenomen in de koopovereenkomst:
– Ouderdomsclausule: Omdat het om een oudere woning gaat, aanvaardt de verkoper geen aansprakelijkheid voor eventuele gebreken die verband houden met de ouderdom van het pand. De koper wordt geacht zich hiervan bewust te zijn en dient hiermee rekening te houden.
– Asbestclausule: In oudere woningen is het mogelijk dat er asbesthoudende materialen aanwezig zijn. De koper aanvaardt de woning met het besef dat er asbest kan voorkomen. Eventuele kosten en risico’s verbonden aan het verwijderen of saneren hiervan zijn volledig voor rekening van de koper.

Deze informatie is door ons met de nodige zorgvuldigheid samengesteld. Onzerzijds wordt echter geen enkele aansprakelijkheid aanvaard voor enige onvolledigheid, onjuistheid of anderszins, dan wel de gevolgen daarvan. Alle opgegeven maten en oppervlakten zijn indicatief. Eigen woning kopen? Neem uw eigen NVM-Makelaar mee!

Kenmerken

Bouwjaar:
1959
Ligging:
In woonwijk
Woonoppervlakte:
85 m2
Perceeloppervlakte:
157 m2
Inhoud:
288 m3
Aantal kamers:
4
Aantal slaapkamers:
2
Status:
Verkocht
Kwaliteit:
Normaal

Energieklasse:
E
Energie einddatum:
25 september 2035
Isolatie:
Gedeeltelijk dubbelglas
Verwarming:
CV ketel
Garage:
Geen garage
Warm water:
CV ketel
Tuin:
Achtertuin, Voortuin
Schuur / Berging:
Vrijstaand steen
Voorzieningen:
Voorzien van elektra
Parkeerfaciliteiten:
Openbaar parkeren
Soort dak:
Plat dak
Permanente bewoning:
Ja
Kwaliteit woning:
Redelijk
Kwaliteit tuin:
Redelijk
Huidig gebruik:
Woonruimte
Huidige bestemming:
Woonruimte
VVE periodieke bijdrage:
Nee
Aanvaarding:
In overleg
Bouwvorm:
Bestaande bouw
Gebouwgebonden buitenruimte:
4 m2
Perceeloppervlakte:
157 m2
Externe bergruimte:
10 m2
C.V.-Ketel:
Remeha
Hoofdtuin:
Achtertuin
Oppervlakte hoofdtuin:
77 m2
Voorzieningen:
Natuurlijke ventilatie
Vraagprijs:
€ 350.000,- k.k.
Soort object:
Woonhuis
Soort woning:
Eengezinswoning
Type Woning:
Tussenwoning
Ligging hoofdtuin:
Zuidoost