MAVA

Coenecoop 142B

Waddinxveen

€ 275.000,- k.k.

Omschrijving

Representatieve bedrijfsunit met kantoor, gelegen op bedrijventerrein Coenecoop. Deze bedrijfsruimte maakt onderdeel uit van een kleinschalig gebouw bestaande uit een 6-tal multifunctionele bedrijfsunits.

Bereikbaarheid:
Nabij de twee op- en afritten van de A-12 en A-20 richting Utrecht, Rotterdam en Den Haag op een steenworp afstand van het NS station Waddinxveen Triangel; een treinverbinding tussen Gouda en Alphen aan den Rijn.

Oppervlakte/indeling:
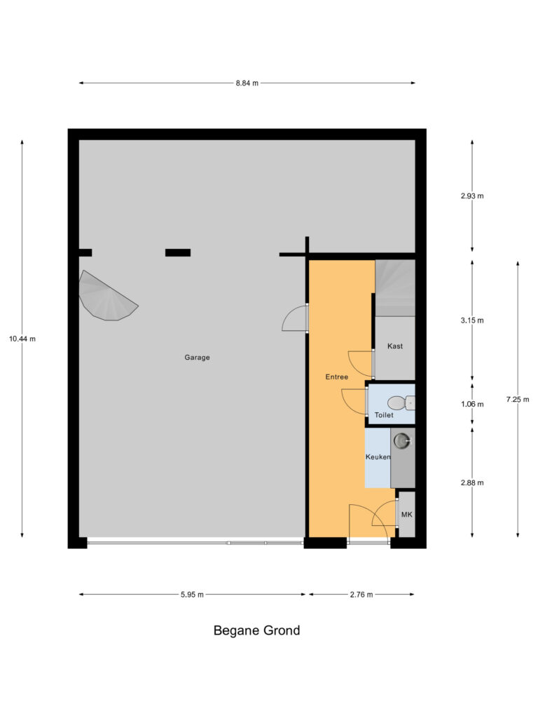
Deze centraal gelegen unit biedt een totale oppervlakte van ca. 146m² verdeeld over 2 lagen.

De begane grond is ingedeeld met een entreedeur, hal met meterkast, pantry, toilet, bergkast en trap naar de verdieping. Doorloop naar de bedrijfsruimte met een overheaddeur (ca. 44 m2), trap naar de entresol en gedeeltelijk afgescheiden ruimte (ca. 26 m2).

Eerste verdieping:
Entresol/multifunctionele ruimte (ca. 24 m2) met deur naar de naast

Representatieve bedrijfsunit met kantoor, gelegen op bedrijventerrein Coenecoop. Deze bedrijfsruimte maakt onderdeel uit van een kleinschalig gebouw bestaande uit een 6-tal multifunctionele bedrijfsunits.

Bereikbaarheid:
Nabij de twee op- en afritten van de A-12 en A-20 richting Utrecht, Rotterdam en Den Haag op een steenworp afstand van het NS station Waddinxveen Triangel; een treinverbinding tussen Gouda en Alphen aan den Rijn.

Oppervlakte/indeling:
Deze centraal gelegen unit biedt een totale oppervlakte van ca. 146m² verdeeld over 2 lagen.

De begane grond is ingedeeld met een entreedeur, hal met meterkast, pantry, toilet, bergkast en trap naar de verdieping. Doorloop naar de bedrijfsruimte met een overheaddeur (ca. 44 m2), trap naar de entresol en gedeeltelijk afgescheiden ruimte (ca. 26 m2).

Eerste verdieping:
Entresol/multifunctionele ruimte (ca. 24 m2) met deur naar de naast gelegen kantoorruimte (ca. 29 m2).

Het is eventueel mogelijk om een verdiepingsvloer te realiseren waardoor je een totale oppervlakte creëert van 190 m². Dit is bij een naastgelegen unit ook gedaan.

Opleveringsniveau:
– pantry;
– meterkast voorzien van water- en elektrameter;
– overheaddeur (hoogte 3 meter, breed 3.5 meter);
– eigen voordeur;
– verlichtingsarmaturen;
– verwarming
– de kantoorruimte is voorzien van een systeemplafond;
– dubbel glas;

Parkeren:
De unit beschikt over 2 eigen parkeerplaatsen.
Het buitenterrein is mandelig, wat inhoudt dat eigenaren met elkaar verantwoordelijk zijn voor dagelijks onderhoud.

Oplevering:
In overleg maar kan snel.

Vraagprijs:
€ 275.000,- kosten koper, excl. B.T.W.

Voorbehoud: Elke transactie behoeft de nadrukkelijke goedkeuring van eigenaar.

Algemeen:
Deze vrijblijvende projectinformatie mag niet worden beschouwd als een aanbieding of offerte. Indien u een aanbieding wenst, kan deze, na goedkeuring door de opdrachtgever, op basis van specifieke gegevens verzorgen.
Aan de samenstelling van deze vrijblijvende projectinformatie is de grootst mogelijke zorg besteed.
Het gebruik ervan geschiedt voor eigen risico.
Aan deze projectinformatie kunnen geen rechten worden ontleend. aanvaardt geen enkele aansprakelijkheid voor schade als gevolg van de inhoud alsmede het gebruik van deze vrijblijvende projectinformatie.

Disclaimer:
Alle door ons verstrekte informatie is met zorg samengesteld, maar geheel vrijblijvend. Wij aanvaarden geen aansprakelijkheid voor eventuele onjuistheden of onvolledigheden.

Waddinxveen_dupree_folder-4
Makelaar Waddinxveen
Geïnteresseerd?
Deel dit object:

Kenmerken

Status:
Beschikbaar
Huurprijs:
€ 0,-
Aanvaarding:
In overleg
Bouwvorm:
Bestaande bouw
Bouwjaar:
2004
Perceeloppervlakte:
97 m2
Totale oppervlakte:
146 m2
Oppervlakte bedrijfsruimte hal:
93 m2
Oppervlakte bedrijfsruimte kantoorruimte:
53 m2
Onderhoud binnen:
Goed
Onderhoud buiten:
Goed
Soort object:
Bedrijfsruimte
Woonruimte:
Geen woonruimte aanwezig
Locatie:
Bedrijventerrein Kantorenpark
Aantal bouwlagen:
1
Bushalte:
Op 500m tot 1000m
NS Station:
Op 1500m tot 2000m
Snelwegafrit:
Op 1500m tot 2000m